忍者ブログ

物件レポートブログ byまぎし不動産事務所

まぎし不動産事務所スタッフが、碧南市周辺の物件をご紹介するブログです。                                  売り土地・戸建住宅・売マンション・アパート・借家・事務所・店舗・工場・貸土地・・など、様々な物件を各スタッフの目線でレポートします。

[PR]

×

[PR]上記の広告は3ヶ月以上新規記事投稿のないブログに表示されています。新しい記事を書く事で広告が消えます。


物件レポート◆貸工場【安城市東端町】建物48坪

仕事以外ではYoutubeばかり流している、おざわです。
おすすめのYoutyuberがいれば教えてくださ~い。
  


 
 知立バイパス(国道23号線)和泉インターまで約2.1㎞です。
名古屋・豊橋方面の取引先へアクセスしやすいですよ。

また、我が社の所在地「碧南市」にも近く、
碧南市民病院までは、約3.6㎞の位置です。
  
 
工業団地内にあり、用途地域は工業専用地域です。
周辺も工場ばかりですから、音・多少の振動・においは、ある程度、周辺を気にせず
ご利用できます。
  
約7mの道路幅に囲まれた角地です。
普通乗用車4台程度のスペースもあるため、
トラックによる搬入・搬出がしやすいですし、
荷物置き場や、従業員の駐車場にも良いですね。

工場内にトイレあり!
外には、プレハブの建物があるので、事務所・休憩所としても利用できます。
 

現在入居中の為、内部写真を公開できませんが、
ご興味のある方は、事前にご連絡いただければ、
日程調整のうえ、室内をご案内いたします。
お気軽に、お申しつけください~

賃料等の詳しい詳細は下記URLにてご確認いただけます。
https://www.athome.co.jp/jr_06/dtl_6973548389/?DOWN=1&BKLISTID=001LPC&SEARCHDIV=1&sref=list_simple
※成約済・募集中止の場合は、表示されません。




 
 
 
今日のランチは、ガルグマクヘ行ってきました♪(テイクアウト可)

自称健康オタク、とーーーってもスタイル抜群なオーナーさんにと、
ダイエットのプロのファビオさんのお店♪

日替わりランチ
 
『二十一穀ブレッドのサンドイッチとレンズマメのスープ』
 
塩の代わりに塩こうじを使って塩分を控えてうま味をUP⤴
お野菜も満足度も100点満点☆彡

午後からのお仕事もパワフルに頑張れました(#^.^#)

お近くの方は是非!←何のレポート?(笑)
でも、大繁盛しませんように♡
(人>ω<*)オネガイシマス! ←本気でお気に入りなので・・・w



【広告有効期限:1か月】



◆物件のお問い合わせは・・・ https://tayori.com/form/d8834401f8adfeb67c8061ea058f82d76878bafc/                                                    ◆まぎし不動産事務所HP http://magishihudousan.iinaa.net/                   ◇売却物件・賃貸物件、募集中!   ◇査定無料                                               ◇売主様・貸主様のご意向により、 情報公開していない物件もあります。 お問い合わせください。
PR

物件レポート◆中古住宅【岡崎市八帖南町】4DK

こんにちは!
岡崎生まれの碧南育ちの太田です。

今回のレポートは、岡崎市の中古住宅をご紹介します。


【暮らしやすい立地がポイント・岡崎市八帖南町】

1.交通アクセスが良い
 名鉄本線「岡崎公園前」駅、愛環鉄道「中岡崎」駅、
2駅とも徒歩4分程度です。
また、国道1号線と248号線が交差した立地です。 

 
 
2.城下町の歴史風情や、豊かな自然にあふれる落ち着いた街
徒歩圏内には、岡崎城、三河武士のやかた家康館、八丁味噌の蔵、
また、岡崎公園、乙川河川敷など、
歴史や自然を感じるウォーキングが楽しめます。


3.近隣に複数の大型商業施設がある
 コムタウン、岡崎シビコ、イオンモール岡崎店など、
大型ショッピングセンターも近隣にあり、
日用品のお買い物や休日のショッピングにお出かけに便利です。
 
  
近くには、八帖保育園、連尺小学校、城北中学校などもあり、
子育て世代にもおススメ。
岡崎市図書館(リブラ)も車で約4分、便利で楽しめます!
  
  
  
  
  
さて、物件をご紹介します。

建物は、木造瓦葺2階建て(昭和52年2月新築)です。
 1階:51.34㎡、2階:23.18㎡ 
延床面積:74.52㎡(22.54坪)

土地面積:178.95㎡(54.18坪)

 
1台分の駐車スペースがあります。
土地の間口は、約10m。
 
 
南側に広い庭があり、プレハブの物置も付いています。
 

物件の詳しい条件は、下記URLにてご確認いただけます。
https://www.athome.co.jp/kodate/6973077567/?DOWN=1&BKLISTID=001LPC&sref=list_simple?DOWN=1&BKLISTID=001LPC&SEARCHDIV=1&sref=list_simple
 
八帖南町内を歩いてみると、
区画割がしっかりしており、建物の新旧交代も 感じられます。
土地を生かして、住宅を新築しても良いかもしれません。
https://www.athome.co.jp/tochi/6973106511/?DOWN=1&BKLISTID=001LPC&sref=list_simple


 ※成約済み、または、売り止めの場合は、条件が表記されません。 
  



以前、八丁味噌の味噌蔵を見学したときに、
味噌樽に発酵した大豆を入れ、
職人さんが足で踏んで空気が混ざっていないかどうかを確認する、とか、
石積みの仕方、さらに、2冬2夏寝かしておく、という
長年の経験と勘が作業工程に散りばめられていることに感動しました。


文化と歴史の街、岡崎市八帖南町で、新たな生活をはじめてみませんか?



(広告有効期限:公開日から1か月)


◆物件のお問い合わせは・・・ https://tayori.com/form/d8834401f8adfeb67c8061ea058f82d76878bafc/                                                    ◆まぎし不動産事務所HP http://magishihudousan.iinaa.net/                   ◇売却物件・賃貸物件、募集中!   ◇査定無料                                               ◇売主様・貸主様のご意向により、 情報公開していない物件もあります。 お問い合わせください。

物件レポート◆貸店舗(住居もOK)【高浜市屋敷町】1LDK

こんにちは! 

お散歩が大好きな池田です。
健康維持、美味しいものを食べるため、 毎日歩いています。

お散歩と言えば、高浜市には、
『鬼みち』『海のみち』『人形小路』の楽しいお散歩コースがあります。


今回は、『人形小路』に面した貸店舗(住居利用もOK)をレポートします!


・・・ところで、高浜市は今、 
鬼滅の刃と鬼瓦職人の鬼師との『鬼コラボ』が話題ですよね~
 
皆さん、映画、観ましたか?
大人も涙しながら、何回も観る人が続出しているそうですね~
私は、小学3年生の娘が「怖い」と言うので、まだ見ていないのですが、
主人は「話題だから一度は見てみたい」と言っています。・・・




さて、物件レポートに戻ります。

この物件は、名鉄三河線『吉浜』駅から出発し、
散策が楽しめる全長約800mの人形小路沿いにあります。
  
道中には、愛知県無形文化財に指定「吉浜細工人形」が楽しめます。


私も、この街の良さをお伝えするために、人形小路を歩いてみました。
残念ながら、今年は中止でしたが、
名鉄電車が企画する、沿線ハイキングのコースに組み込まれたり、
人形小路の会が企画するイベントが開催されたり、
多くの人が訪れる街です。

吉浜駅から人形小路を、歩いて約6分・・・伝承工房八番館に着きました。
 
細工人形が展示され、ベンチもあり、散策中の無料休憩所です。
イベント時には、憩いの場所として多くの人が集まります。




そして!!
その隣に、今回レポートする物件があります。

2階建て(戸建て)の独立した建物です。
 
普通車が2台+軽自動車が1台駐車可能です。
  
玄関扉が印象的。
 

玄関扉の奥は・・・

 
ケーキ・お菓子・お弁当などのテイクアウト店、
雑貨屋さん、
ワークショップなど体験ができる工房など
お店にいかがでしょうか?

エステサロンやネイルサロンにも良さそうですね。
事務所としても勿論OK!

そして、住居としても利用OKです。
トイレ・浴室は、2018年にリフォームしたので、
気持ちよくお使いいただけます。

使い方は、あなた次第!!!


物件の詳細は、コチラをクリック↓
【貸店舗】高浜市屋敷町 ※成約済・募集中止の場合は、物件情報が表示されません。
 
 
 
 
 

 
人形小路は、道路に埋められた瓦をたどって歩けば
ぐるりと回れるようになっていて、

お寺や伝承工房、歌舞伎茶屋などいろんな所に人形が飾ってあります。
なかなか風情がありました。

玄関先に三州瓦で出来た
可愛いアマビエとフクロウが飾ってあるお宅を発見!!
 
アマビエ様に疫病退散をお願いし・・・

散策を続けると、お店が集まった「おいでん横丁」に出ました。
イベントの時には、ここも賑やかだそうです。
  

高浜市名物の鶏めしのお店『魚松』さん

なかなか趣のある佇まい。鶏めし美味しいです。
 
無料休憩所のフリースペース「よしまちプラザ」
ヘルスチャージスタンドと書いてある自動販売機がありました。
 
飲み物はすべて100円。
右下に健康サポート機能ボタンがあり、
先押しすると飲み物に食物繊維を入れてくれるそうです。

そんな自動販売機見たことなかったので、
思わず写真を撮っちゃいました。

ぐるっと歩いて、のどが乾いたら、食物繊維入りドリンクで
健康的になりましょうって感じでしょうか?


風情を楽しみ、健康になれ、人が賑わう高浜市屋敷町

お店・新生活をはじめてみませんか?















 
  
  
  
  
  
 
◆物件のお問い合わせは・・・ https://tayori.com/form/d8834401f8adfeb67c8061ea058f82d76878bafc/                                                    ◆まぎし不動産事務所HP http://magishihudousan.iinaa.net/                   ◇売却物件・賃貸物件、募集中!   ◇査定無料                                               ◇売主様・貸主様のご意向により、 情報公開していない物件もあります。 お問い合わせください。

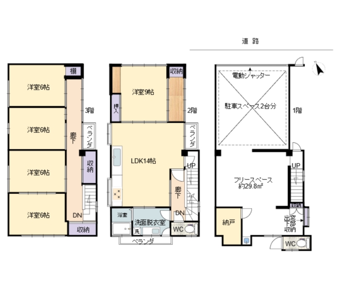
物件レポート◆住居付き貸店舗・事務所【碧南市本郷町】5LDK+フリースペース

こんにちは!
水泳で鍛えている、スタッフのおおたです。


今回、ご紹介する物件は、
碧南市羽根町交差点付近の住居付き貸店舗(事務所)です。


♦周辺環境♦
名鉄三河線 『碧南』駅 徒歩約9分
臨海公園まで徒歩約2分、藤井達吉美術館まで徒歩10分です。

近くに大浜てらまち地区があり、
食事処の九重みりんのK庵、わっぱ堂など有名店があります。

ドミー大浜店が近く、お買い物に便利です。





それでは、室内のご案内です。

鉄骨造瓦葺き3階建て。
5LDK+フリースペース
  
 
では、大幅にリフォームしたオシャレな室内をご覧ください~

【1階】
店舗(土間)、または、車庫(普通車2台OK)としてもご利用できます。

 フリースペース



【2階】
3ツ口コンロのついたキッチンのある約14帖程度の広いLDK(約14帖)と
洋室(約9帖)が続き間になり、約21帖の大空間も実現!
 LDK
 
  2階 洋室(LDKと続き間になります)



【3階】
6帖間が4部屋あり、プライベート空間を確保!
3階 洋室




♦活用例♦

テレワーク、在宅ワークにいかがですか?

また、各種料理教室を開催しても良いかと思われます。
さらに、占い館としての活用も面白いと思います。

1階にお花屋さんなどの小売業をしながら、
生活するスタイルも考えられますネ。




ご商売はしなくて、居住用としての利用もOK!
大家族、2世帯家族にいかがですか?

  

賃貸条件などの詳しい情報は下記URLにてご確認いただけます。
https://www.athome.co.jp/jr_03/dtl_6971153515/?DOWN=1&BKLISTID=001LPC&SEARCHDIV=1&sref=list_simple




建物が大きいので、全てをご紹介できませんでした。
ぜひ、現地を見学してみませんか!
事前にご連絡いただければ、室内をご案内いたします~



◆物件のお問い合わせは・・・ https://tayori.com/form/d8834401f8adfeb67c8061ea058f82d76878bafc/                                                    ◆まぎし不動産事務所HP http://magishihudousan.iinaa.net/                   ◇売却物件・賃貸物件、募集中!   ◇査定無料                                               ◇売主様・貸主様のご意向により、 情報公開していない物件もあります。 お問い合わせください。

物件レポート◆戸建借家【碧南市宮後町】2LDK

自粛期間中、休暇をいただいておりました。
自粛太り…いや、以前からなので、
自粛のせいにはしません(⌒∇⌒) おざわです。


さて今回のレポートは、戸建借家です。

◆周辺環境◆
名鉄三河線 碧南中央駅 徒歩5分
ピアゴ碧南店が近く、生活全般のお買い物に便利な場所です。
近くにはテイクアウトできるおいしいサンドイッチ屋さんもあります。
北側にはフラダンス教室があり、
教室前にはハワイアンフードのマラサダドーナツを買える店舗があります。
もちろんこちらもテイクアウトOK

周辺、と言いつつ食べ物環境になってしまいましたが・・・(汗
物件の紹介に入りたいと思います。

建物は全室洋室です。
1階はLDK一体になっていて、レイアウトフリ―になっているので、
テーブルは?テレビは??と、空間作りから愉しめると思います。

キッチンは賃貸でも珍しいのでは??
立派な3ツ口コンロが設置されています。
ハーマン製で五徳がとにかくカッコいいんです!
お料理頑張っちゃうぞ~(*^▽^*)。。。みたいな    
  

調理台の作業スペースに電源が取れるようになっているので、
食洗器を置くことも、ホットサンドメーカー・ブレンダーを使いたくなるような・・・
素敵なキッチンです。


収納スペースも上の棚と下の引き出し、大変豊富です。
 

 
 
2階には、南側にベランダ付きの2部屋の洋室があります。
南西側の洋室には納戸(約1.8帖)も付いています。
もう一方の東南側の洋室には、パイプハンガーと棚のあるクローゼット。
どちらも収納は完備です。

洗面、バスルーム・洗濯機置き場もあるので、
洗濯をする→干すの家事同線も魅力的なフロアです。


室外は、広いお庭もあるので趣味などにも使えるのではないでしょうか?

駐車場は、車約3台分のスペースあります。
駐車場代込みの家賃もうれしいポイントです。

家賃などの詳しい条件はコチラ
 https://www.athome.co.jp/chintai/6970990794/?DOWN=1&BKLISTID=001LPC&sref=list_simple&bi=tatemono


多くのご家族様に、幅広くお勧めできる物件です。
気になる方はぜひお気軽にご連絡ください。

emoji現在、空室です。
事前にご連絡いただければ、室内のご案内いたします!





 
◆物件のお問い合わせは・・・ https://tayori.com/form/d8834401f8adfeb67c8061ea058f82d76878bafc/                                                    ◆まぎし不動産事務所HP http://magishihudousan.iinaa.net/                   ◇売却物件・賃貸物件、募集中!   ◇査定無料                                               ◇売主様・貸主様のご意向により、 情報公開していない物件もあります。 お問い合わせください。